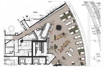
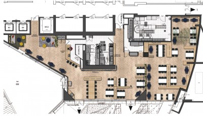
Dans le cadre de la requalification complète des espaces de restauration de la Tour Eqho, à La Défense, notre mission s’est inscrite dans une réflexion à la croisée de l’architecture, de l’usage et du bien-être. Avec ses plus de 70 000 m² de bureaux répartis sur plusieurs dizaines d’étages, la Tour Eqho est une véritable ville verticale. C’est cette analogie entre la tour et la ville qui a guidé notre approche conceptuelle, chaque restaurant devenant une entité inspirée d’un lieu urbain familier et offre une ambiance spécifique — intimité, convivialité, nature ou effervescence — permettant aux utilisateurs de varier les expériences selon leurs besoins au cours de la journée. Cette diversité favorise le bien-être, les échanges et la qualité de vie au travail en recréant des repères émotionnels et sensoriels au coeur de la tour.
Catégories & Tags
-
Timeline & Status-
LocalisationParis, France
Client
Astoria Paris
Astoria Paris
Surface
- m²
- m²
Budget
- €
- €





